X




>

《龙阳路法式奶油案例》 1051次

设计理念

HOUZZ INTERIOR DESIGN IDEAS

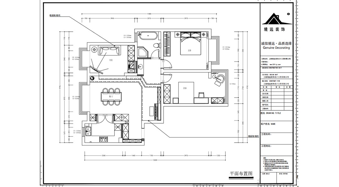
本案业主是位严重细节控,与设计师前前后后碰了多次,终于敲定方案啦;“拱形门、线条、奶油色系,柔美精致......”全屋保留法式元素,与现代主义手法结合、简化,实现精致的柔和生活环境。

房屋详情

HOME DETAILS

小区:龙阳路
户型: 三室两厅
面积:100~130㎡
风格:法式风格
设计师:贾利娟
所在区:浦东新区

贾利娟

首席设计师

经验:从业13年 价格:160~300/㎡
擅长:美式 现代简约 轻奢
169 0 写评论

相关案例

RELATED CASES

该设计师更多案例 该户型其他案例 该风格其他案例
还可以输入200字
  • 加载更多︾